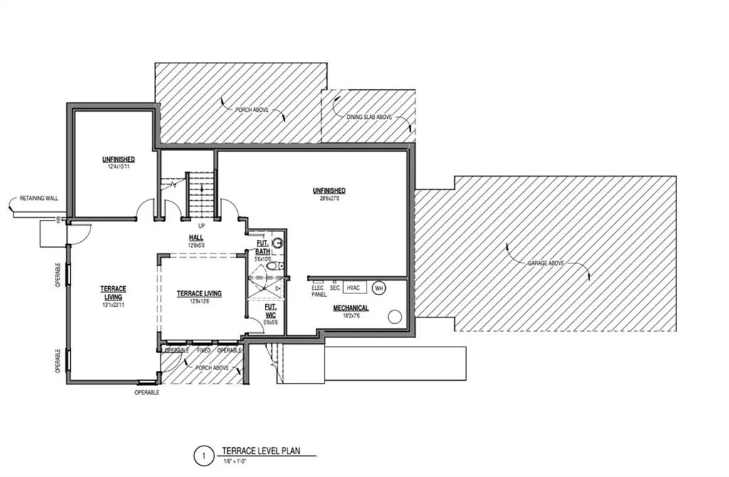
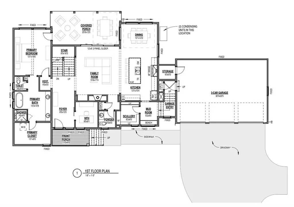
225 Winterberry Wy is on a one acre homesite in the Aster community of Roswell, GA. This 4,751 square foot home offers 4 bedrooms and 4.5 bathrooms, blending a modern style in a natural setting. The Home is walk out to the rear yard from the main level with no deck or stairs. It has a covered porch The Vaulted primary suite is conveniently located on the main level, providing a private retreat with all the comforts you desire. The home includes a dedicated work-from-home space downstairs, perfect for maintaining productivity in a quiet, comfortable environment. Additionally, two finished living spaces in the terrace level offer ample room for relaxation and entertainment.There is a rear covered porch with triple slider doors. As zero energy ready home, reflecting a commitment to sustainability and energy efficiency. The overall design is described as modern moody, characterized by simplicity, sophistication, and a focus on functionality. Natural materials like light wood and textures are complemented by dark modern accents, creating a balanced and inviting atmosphere. The interior of the home has been curated by our designer. This home is a Zero energy Ready home with Spray Foam Insulation is in the Attic envelope of the entire home and exterior walls, 18 Seer HVAC and Tankless Water Heater. Aster features an amenity area and nature trails throughout the community. Roswell is Named One of the Top Three Cities in the Nation to Raise Your Family, released by Frommer's.
7663973
Single Family, Other, 3+ Story
4
Fulton
4 Full/1 Half
2025
1
Acres
Builder
Public Water
3
Blown-In Insulation, HardiPlank Type, Spray Foam Insulation
Septic Tank
The scores below measure the walkability of the address, access to public transit of the area and the convenience of using a bike on a scale of 1-100
Walk Score
Transit Score
Bike Score
Loading...
Data Provided by ATTOM Data®
Loading...

